Das Neuländer Quarree ist als multifunktionales Quartier geplant und bildet den östlichen Abschluss des Harburger Binnenhafens. In einem Wettbewerb sollten die markanten Eckgebäude des Quartiers ge- bzw. überplant werden.
Das Bürogebäude erhält seinen Hochpunkt an der Quartiersecke. Die vorgegeben Rückstaffelung an der Ecke wird verworfen. Zur Einmündung der Erschließungsstraße, ist das Gebäude unterschnitten und leitet so zu den Zugängen. Riegel und Hochhaus werden als ein Gebäude begriffen, der Hochpunkt wird aus dem Riegel entwickelt.
Der Gebäuderiegel könnte, wenn er wie im städtebaulichen Model vorgesehen realisiert wird, eine erhebliche Länge entwickeln. Die Fassade erhält daher eine betont großmaßstäbliche, ruhige Ordnung, die diese Länge verträgt. Ein Raster alternierender Felder, gliedert die Fassade, die aus zwei Ebenen, einer helleren und einer dunkleren, besteht. Die tragenden Pfeiler scheinen mit der äußeren Fassade zu verspringen, tragen aber dahinter die Lasten direkt in den Grund ab. In der äußeren, hellen Metallfassade aus eloxiertem Aluminium, werden auch die Sonnenschutzelemente integriert. In dem dunkel bronzierten Teil der Fassade, werden Profile, Paneele aus strukturiertem Aluminiumblech und Glasflächen bewusst optisch zusammengezogen.
Die Fassade des Turms variiert das Fassadenthema des Riegels. Sie bildet hier großmaßstäblich Kästen mit Prallglasscheiben aus, die an der lärmzugewandten Seite den Nutzern zusätzlichen Schutz bieten. Der punktuelle Mehraufwand an dieser exponierten Stelle, hebt die Wertigkeit der gesamten Fassade und wird über die größeren Flächenanteile der insgesamt günstigen Fassade des Riegels kompensiert.
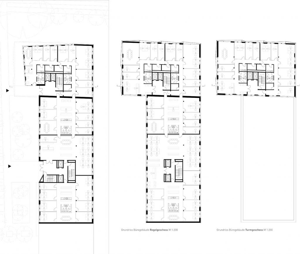
Turm und Riegel werden über zwei Treppenhauskerne effizient erschlossen. Die Geschosse sind in fünf Abschnitte unter 400 m2 unterteilt, sodass ein flexibler Ausbau, ohne notwendige Flure möglich ist. Die fünf Abschnitte können getrennt erschlossen und vermietet werden, oder als eine durchgängige Nutzungseinheit eingerichtet werden.
| WBW 2014 | 2. Preis |
| Planung | LPH 2 (2014) |
| Fläche Hotel | 10.140 qm BGFa |
| Fläche Wohnen | 10.670 qm BGFa |
| Baukosten | 24.255.000 € |
| Bauherr | Goldwert Gruppe |
| Standort | Binnenhafen Hamburg-Harburg |







