Neubau einer 3-Feld-Sporthalle an der Hebebrandstraße 1 in Hamburg
Die ehemalige Fachhochschule für Bauwesen am Standort Hebebrandstraße 1 wird zu einer sechszügigen Campusschule umgebaut. Die vier Bestandsgebäude sowie die Außenanlagen wurden in den Jahren 1965-1969 nach Plänen von Friedrich Helbrecht errichtet und stehen einschließlich der Außenanlagen unter Denkmalschutz.
Eine Sporthalle wird für die zukünftige Schulnutzung errichtet. Mit dem Denkmalschutzamt wurde vereinbart, die technische Versuchshalle des Bestandes abzubrechen, und dieses Baufeld für die erforderliche 3-Feld-Sporthalle zu verwenden.
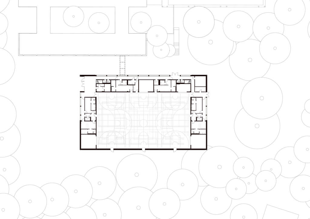
Die Dreifeldhalle dient dem Schul- und Vereinssport. Die Sporthallenfläche wird dreiseitig von den Nebenräumen Technik, Umkleiden, Sanitärräume umschlossen. Die Halle kann durch zwei Trennvorhänge in drei gleich große Hallenteile geteilt werden. Sie wird als Versammlungsstätte mit Zuschauerbereich im Obergeschoss ausgelegt.
Der Haupteingang des Gebäudes befindet sich in der Nordfassade. Er wird an der Nordseite plastisch in den Sockelbau integriert. Mit einen Unterschnitt wird hier ein überdachter Vorbereich ausgebildet. Die bestehende Verbindungsbrücke zum Bestand wird neu errichtet. Die Glasfassade im Erdgeschossbereich der Ostfassade öffnet das Gebäude zur Schule hin.
Die Zugehörigkeit zum denkmalgeschützten Ensemble wird durch Fassadengestaltung und Materialität zum Ausdruck gebracht. Als Fassadenmaterial für den Sockel ist analog zur Sanierung der Bestandsgebäude schwarzer Klinker vorgesehen. Der obere Hallenkörper ist mit gefalteten Metallblechen verkleidet, und in seiner schwarzen Farbgebung farblich auf den Bestand abgestimmt. Es werden Fensterbänder in Analogie zum Altbau ausgebildet. Die Fenster werden wie am sanierten Bestand in eloxiertem Aluminium ausgeführt.
Die Halle ist aufgrund der Nutzung als Versammlungsstätte als Stahlbetonmassivbau konzipiert. Für die Dachbinder der 3-Feld-Sporthalle sind Holzfachwerkträger aus BSH-Balkenquerschnitten vorgesehen. Alle Dachflächen werden extensiv Begrünt; das Hallendach wird zusätzlich komplett mit eine Photovoltaikanlag belegt.
| VgV 2023 | 1. Preis |
| Planung | 2023-2025 |
| Realisierung | 2025-2026 |
| Bruttofläche | ca. 2.515 m² |
| Bauherr | Schulbau Hamburg |
| Standort | Hebebrandstraße 1 |
| Team | Christoph Roselius, Julian Hillenkamp, Tania Lembke, Jeannie Schwiegershausen, Fabrizio Zandegiacomo |




